- Verwijderd automatisch vet, olie en smurrie uit het keukenafvalwater.
- Verwijderd vaste stoffen uit het keukenafvalwater.
- RVS constructie.
- Eenvoudig te plaatsen en te onderhouden.
- Afgescheiden olie en vet kan gerecycled worden.
- Programma kan aan uw situatie aangepast worden.
- PDI en ASME goedgekeurd, ( de zwaarste U.S.A. milieu keuring)
- 3 jaar garantie.
- U heeft voor de beste werking een warmwater aansluiting nodig.
deze is nodig voor de ingebouwde Reiniging douche
- tegen meerprijs: de Pizzeriakit, airlift om meel uit het water te liften. (speciaal voor Pizzeria )
Vetafscheider van 5.7 liter per seconden GGX75 IS
Zeer geschikt voor een grote keuken of productiekeuken
| Als PRO versie. |
| Pro-functies omvatten: • Nieuw DX3 PLC-programma specifiek voor de PRO-versie. DX2-programma op het standaardbereik. • Automatische wasset (opnieuw uitgelijnd om zowel de mand als het skimmingwiel schoon te spuiten) • Standaard voorzien van een magneetventiel voor een wasset op alle PRO-modellen (van GGX7 – GGX150AST) • Maandelijks schoonmaakprogramma • Hoorbaar alarm om de dagelijkse onderhoudsactiviteiten te verbeteren. Dit klinkt aan het einde van elke skimmingcyclus op een comfortabele 66 dB. • Actiedrukknop (om dagelijks/maandelijks onderhoud te bevestigen) • Geforceerde skim-functie (met behulp van de actieknop) voor on-demand skimming-cyclus. • Verbeterde afdichting van de dekselafdichting tegen beknelling. • Ontluchting onder het bedieningspaneel voor vochtafvoer • Verwijdering van de microschakelaaraansluiting als potentiële bron van binnendringend water • Aanpassing van het uitlaatschot om het toegangsonderhoud te vergemakkelijken. De PRO-functie zal de standaard automatische wasoptie zijn en vervangt daarmee de bestaande AWK (Auto Wash Kit). Ondanks alle extra functies zijn we echter blij om de PRO te lanceren als een meer competitieve optie dan de AWK. Om Pro te bestellen, voegt u “PRO+” toe aan de GGX15 tot 35 standaardcodes (bijvoorbeeld GGX15PRO+). |
Op de capaciteit pagina kan u zien welke uitvoering u nodig heeft. Bij twijfel verzoeken wij u ons te bellen. Zodat wij samen kunnen bepalen welke uitvoering geschikt is voor uw toepassing.
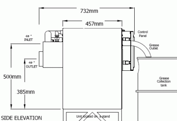
TECHNICAL DATA
L x B x H 1100 x 756 x 548 mm
Weight______________________________________________________95 KG(empty)
Material___________________________Exterior, 16 gauge stainless steel, bright finish
Interior____________________________Stainless Steel and Acetal Plastic Components
Maximum Flow Rate_____________________________________4.75 litres per second
Lift Out Strainer Capacity___________________________________________14 litres
Skimming Rate__________________________________________up to 12 litres hourly
Grease Retention Capacity________________________________________80+ Litres
Hot wash water supply requirements __minimum 0.75 litres/s @ 3-6 bar (temp 40-60 C)
Progamming/Control________________________24 hour, 7 day, multi functional digital
Electrical Load_________________________________________230VAC, 1100W, 4.8A
Standard Features
- Automatic Grease Removal Mechanism
- Lift out Internal solids strainer (I.S.)
- Automatic Spray Bar Systems x 2
- Water level monitoring sensor x 1
- PLC controller with LCD Display Notifications
- Energy Saving Mode
- Bidirectional Inlet and Outlet plumbing ports
- Quick Fit Rubber Couplings
- Grease Heating system
- Pipework and power cabling concealed at rear.
- Builiding Management Control( zero volt contact for power status)



Key Installation Notes:
Allow for the minimum clearances shown, including clearance for
pipe connections and 360 degree user access around unit
Control panels should be fully accessible to service personnel
Electrical supply is single phase. An RCD/ELCB rated 30mA must be
installed for all Grease Guardian electrical supplies
Observe all local plumbing regulations for pipe venting, trapping.
Observe all local safety and hygiene regulations for room lighting,
ventilation and user access.
Note: Not to be treated as an installation guide. Installation guide
in full is issued on supply of system.
PDF Technische data
Inclusief:![]() |
Los meegeleverd: een reinigings "spray bar" U kan die zelf plaatsen en aansluiten op een warmwater aansluiting, koud kan ook maar warmwater heeft de voorkeur. U richt twee straalbuizen op het vuil dat in de tank drijft en 1 straalbuis op het afroomwiel. Het drijvende vuil wordt op die manier gebroken zodat olie bij het afroomwiel kan komen. En het afroomwiel krijgt ook een schoonmaakstraal. Om te hoog water in de tank te voorkomen is het advies niet meer dan 4 seconden per 20 seconden te spuiten. U bedient de "spray bar" met de kogelkraan. |
Onderstaande video laat u op een snelle en duidelijk manier zien waarom de Grease Guardian vetafscheider overal geplaatst kan worden.
Een paar paar keer per jaar laten leegzuigen is niet meer nodig.
Elke dag, op een door u bepaald tijdstip, kunt u de vet-opvangbak legen in uw (blauwe) afvalton, die u eens in de zoveel tijd ter recycling verkoopt.
Ja u hoort het goed. Uw afval is geld waard.
Gooi het bij uw gebruikt frituurvet en laat het tegen betaling ophalen.
Stadium 1 Veeg al het vuil droog boven de vuilnisbak van uw vaatwerk, met borstel, papier of handschoen, nog voor u het in contact brengt met water.
Stadium 2 Via een grofvuilfilter komt het water in de eerste tank.
Stadium 3 Zand en zware deeltjes zakken naar de bodem van de eerste tank
Stadium 4 Het afvalwater stroomt door naar de tweede tank, lichte deeltjes waaronder vet zullen opdrijven.
Stadium 5 Een verwarmingssysteem dat zich in de tweede tanks bevindt, wordt twee maal per 24 uur door een tijdklok geactiveerd.
Een motorisch aangedreven afschuimwiel voert de gesmolten drijvende vetten door middel van een afschraper naar de afvoergoot. Via de goot worden zij afgevoerd naar de losse verzamelbak. Deze vetten kunt u nu afvoeren zoals het oude frituurvet.
Onderhoud GGX15:
De Grease Guardian verzameld elke dag uw vet, olie en vuil.
Aan het eind van de dag voor dat u de vaatwasmachine zijn laatste rondje laat draaien en u het vuilnis heeft weggebracht dient
u de volgende handelingen uit te voeren.
- grofvuilfilter er uit en legen in de vuilnisbak, filter wassen in de vaatwasmachine.
- met schuimspaan het drijvende vuil van de oppervlakte scheppen en in de vuilnisbak gooien
- met schuimspaan of pollepel vuil van de bodem scheppen.
- opvangvak uitnemen en zo uitschenken in he grote bassin dat uitsluitend het water daar in loopt.
- olie en vet in de opvangbak in de daar voor bestemde vetton ter recycling legen.
- grofvuilfilter, schuimspaan en opvangbak wassen in het laatste rondje van de vaatwasmachine. Daarna terugplaatsen.
- vuilniszak naar container.
Klaar voor 24 uur.

Een paar keer per jaar, afhankelijk van wat u aan zand door u spoelbak heeft weggegooid, moet de afscheider helemaal geleegd worden.
Belangrijke opmerking.
Als u het vuil niet twee keer in uw handen wilt hebben, is ons advies om de borden en pannen schoon te maken boven de vuilnisbak.
Als u met een borstel, wisser of met papier al het vuil van de borden, schalen en pannen haalt, komt er helemaal geen vuil in de afscheider.
Een kwestie van netjes werken. Het riool is geen vuilnisbak maar ontworpen om water af te voeren.
Onze techniek helpt u, maar u heeft het zelf voor 100% in de hand


© 2026 www.horeshop.nl - Powered by Shoppagina.nl